無軸螺旋輸送機型號及參數有哪些?
發布日期:2022/4/29 類別:公司新聞 瀏覽量: 4120 次
無軸螺旋輸送機用于污水處理廠輸送中細格柵其柵條凈距50mm的除污機柵渣和壓濾機泥餅等物料。 性能好。采用全封閉輸送和易清洗的螺旋表面,可保證環境衛生和所送物料不受污染、不泄漏。 扭距大、能耗低。由于螺旋無軸,物料不易堵塞,排料口不堵塞,因而可以較低速度運轉,平穩傳動,降低能耗。

湖州亞杭環保機械設備有限公司主營研發制造各種無軸螺旋輸送機,主要包含WLS150、WLSW200、WLS250、WLS300、WLS400、WLS500等型號,輸送長度小于20m,可以選擇WLS150、WLS200等型號,30m以內,可以選擇WLS400、WLS500等型號。
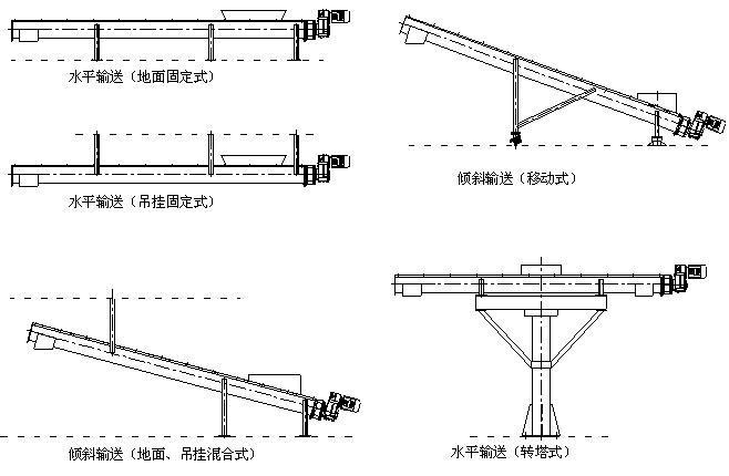
結構原理圖:
技術參數:

型號 |
WLS150 |
WLS200 |
WLS250 |
WLS300 |
WLS400 |
WLS500 |
名稱 |
螺旋體直徑 (mm) |
150 |
184 |
237 |
284 |
365 |
470 |
外殼管直徑 (mm) |
180 |
219 |
273 |
351 |
402 |
500 |
允許工作角度 ( α ) |
0 °~30 ° |
0 °~30 ° |
0 °~30 ° |
0 °~30 ° |
0 °~30 ° |
0 °~30 ° |
輸送長度 (m) |
12 |
13 |
16 |
18 |
22 |
25 |
輸送能力 (t/h) |
2.4 |
7 |
9 |
13 |
18 |
28 |
電機 |
型號 |
L ≤7 |
Y90L-4 |
Y100L1-4 |
Y100L2-4 |
Y132S-4 |
Y160M-4 |
Y160M-4 |
功率kW |
1.5 |
2.2 |
3 |
5.5 |
11 |
11 |
型號 |
L>7 |
Y100L1-4 |
Y100L2-4 |
Y112M-4 |
Y132M-4 |
Y160L-4 |
Y160L-4 |
功率kW |
2.2 |
3 |
4 |
7.5 |
15 |
15 |
安裝方式:

